Thalluri Township, Vizag

Thalluri Township, Vizag

(0 Review)

Description

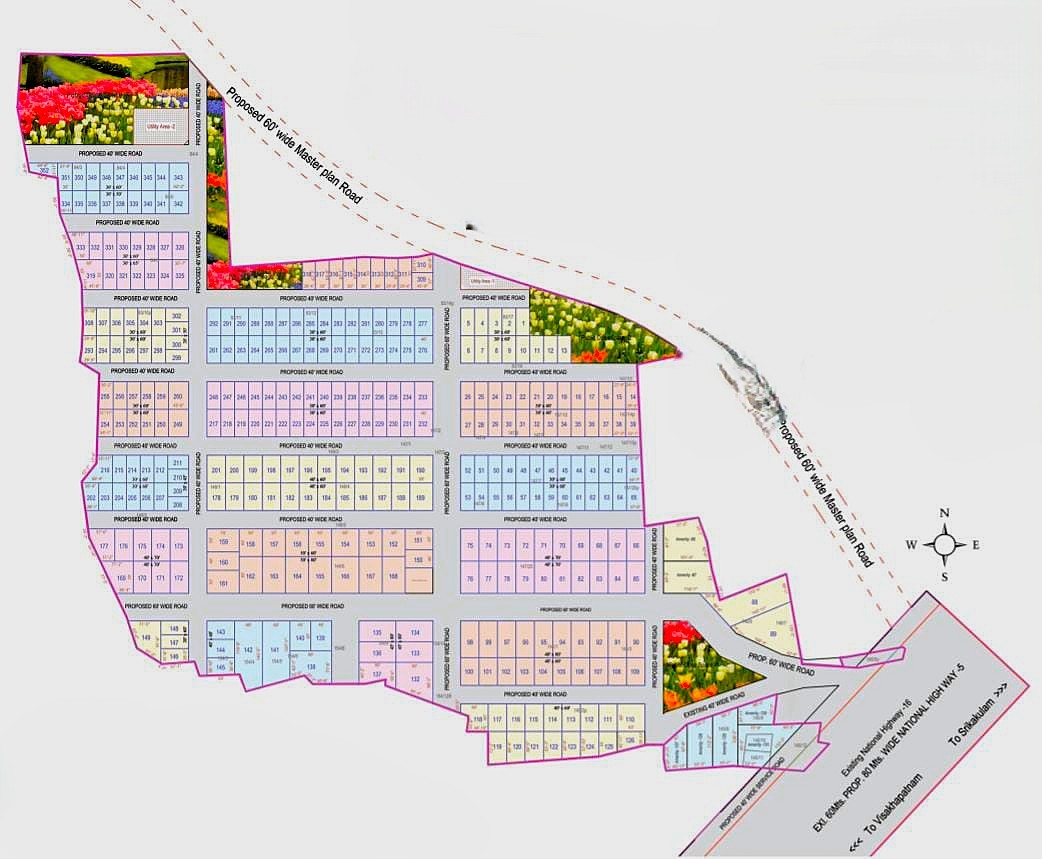
Thalluri Township in Vizag is a well-planned layout venture spread across 19.2 Acres in a designated residential zone. With approvals and groundwork in place, the project is ready for construction and aims to offer a thoughtfully organized living environment. It provides a total of 214 plots, designed to meet the growing demand for residential development in a peaceful and well-connected neighborhood.

Situated in a rapidly developing part of Vizag, Thalluri Township offers easy access to essential infrastructure such as schools, hospitals, and commercial hubs. The layout emphasizes open space, proper road networks, and utility provisions, making it a promising choice for individuals and families looking to build their dream homes in a serene yet accessible location.

More Details >>

Property Details

  • Project Status : Ready To Move
  • Total number of units: 214
  • Land area: 19.2 Acres

Regulatory Details/Registration Details

RERA No.: P02260011222

Amenities

Floor Plans

Location & Landmarks

From Our Gallery

Commute Time

Distance/Time to airport: 23 Mins
Distance/Time to Railway station: 35 Mins
Distance/Time to Mall: 5 KM
Nearest Educational institute: Oakridge International School, Avanthi Institute of Engineering & Technology
Nearest Hospital: Muvva Gopala Hospital, Ujhwal Hospital

Location

Near By Upcoming Developments

OceanAirCity,Vizag-Land-Bhogapuram-Visakhapatnam-UnderConstruction
  • Land
share
Status: Under Construction
Price On Request

Looking for a dream home?

We can help you realize your dream of a new home

Welcome to SwapnaGruha - Need help?
How May I Help You ?